渋谷区(東京都)の賃貸マンション・アパート一覧

渋谷区(東京都)の賃貸マンション・アパートをお探しなら「伊藤忠の賃貸」におまかせ下さい。
お客様の住みたいエリア・条件の賃貸マンション・アパート情報を40件紹介しております。
住みたい沿線・駅・地域や、ご希望に合った間取り、予算・ご希望の家賃、徒歩時間などの条件から、ご希望に沿った賃貸マンション・アパート情報を見つけていただけます。
お客様にご希望に沿うお部屋が見つかるようにお手伝いいたしますので、お気軽にご相談ください!

もっと見る
  • エリア

    東京都(渋谷区)

  • 絞込条件

40件 / 16

並び替え
表示件数

チェックした物件をまとめて

  • パークフラッツ渋谷神山町

    • マンション

    物件写真

    東京都渋谷区神山町6-11

    • 東急東横線「渋谷」駅 徒歩10分
    築年月
    2018年6月築
    階建て
    9階建て
    構造
    RC
    総戸数
    33戸
    • 間取図
    • 所在階
      部屋番号
    • 賃料
      共益費
    • 敷金
      礼金
    • 間取り
      専有面積
    • お気に入り
    • 詳細
    間取図
    間取図

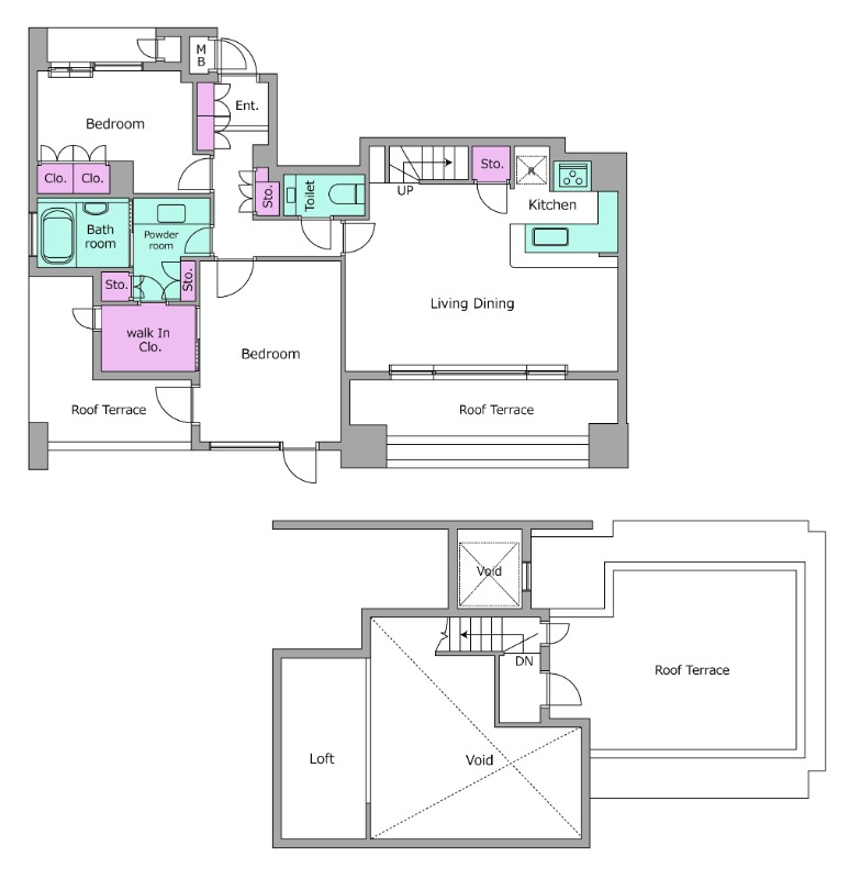
    97万円 / 共益費 30,000円

    1ヶ月 / なし

    9階(901号室) / 2LDK / 95.44㎡

  • レジディア笹塚Ⅱ

    • マンション

    物件写真

    東京都渋谷区笹塚2丁目25-6

    • 京王線「笹塚」駅 徒歩6分
    築年月
    2011年2月築
    階建て
    15階建て
    構造
    RC
    総戸数
    164戸
    • 間取図
    • 所在階
      部屋番号
    • 賃料
      共益費
    • 敷金
      礼金
    • 間取り
      専有面積
    • お気に入り
    • 詳細
    間取図
    間取図
    間取図
    間取図
    間取図
    間取図
    間取図
    間取図
    間取図
    間取図

    12.6万円 / 共益費 15,000円

    なし / なし

    1階(105号室) / 1K / 23.04㎡

    間取図

    13万円 / 共益費 15,000円

    なし / なし

    2階(216号室) / 1K / 23.04㎡

    間取図

    21.2万円 / 共益費 20,000円

    1ヶ月 / 1ヶ月

    4階(410号室) / 1LDK / 40.35㎡

    間取図

    12.9万円 / 共益費 15,000円

    なし / なし

    6階(602号室) / 1K / 22.15㎡

    間取図

    12.9万円 / 共益費 15,000円

    なし / なし

    6階(607号室) / 1K / 22.12㎡

    間取図

    12.8万円 / 共益費 15,000円

    なし / なし

    6階(611号室) / 1K / 21.33㎡

    間取図

    13.6万円 / 共益費 15,000円

    なし / なし

    8階(810号室) / 1K / 24.11㎡

    間取図

    21.5万円 / 共益費 20,000円

    1ヶ月 / なし

    9階(908号室) / 1LDK / 41.3㎡

    間取図

    12.7万円 / 共益費 15,000円

    なし / なし

    10階(1004号室) / 1K / 22.2㎡

  • レジディア広尾Ⅱ

    • マンション

    物件写真

    東京都渋谷区広尾5丁目19-17

    • 東京メトロ日比谷線「広尾」駅 徒歩7分
    築年月
    2005年11月築
    階建て
    12階建て
    構造
    SRC
    総戸数
    76戸
    • 間取図
    • 所在階
      部屋番号
    • 賃料
      共益費
    • 敷金
      礼金
    • 間取り
      専有面積
    • お気に入り
    • 詳細
    間取図
    間取図
    間取図

    14.8万円 / 共益費 15,000円

    なし / なし

    2階(201号室) / 1K / 21.25㎡

    間取図

    16.3万円 / 共益費 15,000円

    なし / なし

    10階(1006号室) / 1K / 20.4㎡

  • レジディア代官山

    • マンション
    • NEW

    物件写真

    東京都渋谷区代官山町1-4

    • JR山手線「渋谷」駅 徒歩5分
    築年月
    2004年9月築
    階建て
    8階建て(地下1階)
    構造
    RC
    総戸数
    42戸
    • 間取図
    • 所在階
      部屋番号
    • 賃料
      共益費
    • 敷金
      礼金
    • 間取り
      専有面積
    • お気に入り
    • 詳細
    間取図
    間取図
    間取図
    間取図

    19万円 / 共益費 20,000円

    なし / なし

    2階(205号室) / 1R / 32㎡

    間取図

    41.5万円 / 共益費 25,000円

    1ヶ月 / 1ヶ月

    6階(604号室) / 1LDK / 54.53㎡

    間取図

    66万円 / 共益費 25,000円

    1ヶ月 / なし

    8階(801号室) / 2LDK / 85.83㎡

  • レジディア恵比寿南

    • マンション

    物件写真

    東京都渋谷区恵比寿南2丁目28-8

    • JR山手線「恵比寿」駅 徒歩8分
    築年月
    2007年3月築
    階建て
    8階建て(地下1階)
    構造
    RC
    総戸数
    39戸
    • 間取図
    • 所在階
      部屋番号
    • 賃料
      共益費
    • 敷金
      礼金
    • 間取り
      専有面積
    • お気に入り
    • 詳細
    間取図
    間取図

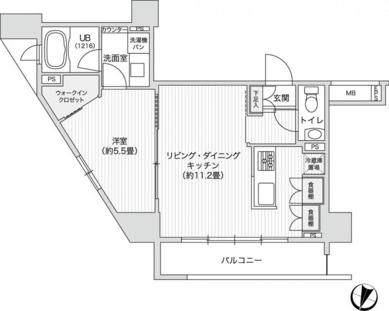
    31万円 / 共益費 20,000円

    1ヶ月 / 1ヶ月

    2階(205号室) / 1LDK / 45.27㎡

  • レジディア恵比寿Ⅲ

    • マンション

    物件写真

    東京都渋谷区東3丁目6-20

    • JR山手線「恵比寿」駅 徒歩9分
    築年月
    2006年3月築
    階建て
    10階建て
    構造
    RC
    総戸数
    26戸
    • 間取図
    • 所在階
      部屋番号
    • 賃料
      共益費
    • 敷金
      礼金
    • 間取り
      専有面積
    • お気に入り
    • 詳細
    間取図
    間取図
    間取図
    間取図

    12.7万円 / 共益費 15,000円

    なし / なし

    2階(205号室) / 1K / 18.5㎡

    間取図

    13.9万円 / 共益費 15,000円

    なし / なし

    4階(405号室) / 1K / 21.52㎡

    間取図

    19.4万円 / 共益費 20,000円

    1ヶ月 / なし

    5階(502号室) / 1LDK / 34.48㎡

  • レジディア代々木Ⅱ

    • マンション

    物件写真

    東京都渋谷区代々木3丁目15-7

    • JR山手線「代々木」駅 徒歩10分
    築年月
    2008年1月築
    階建て
    4階建て(地下1階)
    構造
    RC
    総戸数
    31戸
    • 間取図
    • 所在階
      部屋番号
    • 賃料
      共益費
    • 敷金
      礼金
    • 間取り
      専有面積
    • お気に入り
    • 詳細
    間取図
    間取図
    間取図
    間取図

    15.7万円 / 共益費 15,000円

    なし / なし

    1階(103号室) / 1R / 24.86㎡

    間取図

    16.3万円 / 共益費 15,000円

    なし / なし

    1階(105号室) / 1R / 24.86㎡

    間取図

    18.7万円 / 共益費 20,000円

    なし / なし

    5階(503号室) / 1R / 30.29㎡

  • パークフラッツ渋谷代官山

    • マンション

    物件写真

    東京都渋谷区東1丁目27-2

    • JR山手線「渋谷」駅 徒歩5分
    築年月
    2005年5月築
    階建て
    9階建て
    構造
    RC
    総戸数
    48戸
    • 間取図
    • 所在階
      部屋番号
    • 賃料
      共益費
    • 敷金
      礼金
    • 間取り
      専有面積
    • お気に入り
    • 詳細
    間取図
    間取図

    27.8万円 / 共益費 12,000円

    1ヶ月 / なし

    2階(201号室) / 1LDK / 41.35㎡

  • レジディア恵比寿Ⅱ

    • マンション

    物件写真

    東京都渋谷区恵比寿西1丁目21-7

    • JR山手線「恵比寿」駅 徒歩6分
    築年月
    2006年1月築
    階建て
    15階建て
    構造
    RC
    総戸数
    61戸
    • 間取図
    • 所在階
      部屋番号
    • 賃料
      共益費
    • 敷金
      礼金
    • 間取り
      専有面積
    • お気に入り
    • 詳細
    間取図
    間取図
    間取図
    間取図

    18.3万円 / 共益費 15,000円

    なし / なし

    5階(501号室) / 1K / 29.44㎡

    間取図

    33.2万円 / 共益費 25,000円

    1ヶ月 / 1ヶ月

    14階(1401号室) / 1LDK / 53.61㎡

    間取図

    18.3万円 / 共益費 15,000円

    なし / なし

    14階(1403号室) / 1R / 28.49㎡

  • レジディア恵比寿

    • マンション

    物件写真

    東京都渋谷区東3丁目15-6

    • JR山手線「恵比寿」駅 徒歩7分
    築年月
    2001年1月築
    階建て
    10階建て
    構造
    SRC
    総戸数
    26戸
    • 間取図
    • 所在階
      部屋番号
    • 賃料
      共益費
    • 敷金
      礼金
    • 間取り
      専有面積
    • お気に入り
    • 詳細
    間取図
    間取図
    間取図
    間取図

    16.3万円 / 共益費 15,000円

    なし / なし

    2階(202号室) / 1K / 27.12㎡

    間取図

    14.2万円 / 共益費 15,000円

    なし / なし

    4階(401号室) / 1R / 19.91㎡

    間取図

    16.8万円 / 共益費 15,000円

    なし / なし

    8階(802号室) / 1R / 27.12㎡

  • レジディア広尾南

    • マンション

    物件写真

    東京都渋谷区恵比寿2丁目38-1

    • 東京メトロ日比谷線「広尾」駅 徒歩8分
    築年月
    2007年8月築
    階建て
    10階建て
    構造
    RC
    総戸数
    26戸
    • 間取図
    • 所在階
      部屋番号
    • 賃料
      共益費
    • 敷金
      礼金
    • 間取り
      専有面積
    • お気に入り
    • 詳細
    間取図
    間取図
    間取図
    間取図
    間取図

    33万円 / 共益費 25,000円

    1ヶ月 / なし

    10階(1001号室) / 1LDK / 59.55㎡

    間取図

    22.5万円 / 共益費 20,000円

    1ヶ月 / 1ヶ月

    3階(301号室) / 1LDK / 39.03㎡

    間取図

    23.8万円 / 共益費 20,000円

    1ヶ月 / なし

    6階(603号室) / 1LDK / 39.08㎡

    間取図

    22.4万円 / 共益費 20,000円

    1ヶ月 / なし

    9階(901号室) / 1LDK / 39.03㎡

  • レジディア渋谷

    • マンション

    物件写真

    東京都渋谷区宇田川町37-16

    • JR山手線「渋谷」駅 徒歩7分
    築年月
    2006年6月築
    階建て
    11階建て(地下1階)
    構造
    SRC
    総戸数
    39戸
    • 間取図
    • 所在階
      部屋番号
    • 賃料
      共益費
    • 敷金
      礼金
    • 間取り
      専有面積
    • お気に入り
    • 詳細
    間取図
    間取図
    間取図

    16.6万円 / 共益費 15,000円

    なし / なし

    9階(903号室) / 1K / 25.9㎡

    間取図

    16.8万円 / 共益費 15,000円

    なし / なし

    10階(1002号室) / 1R / 26.02㎡

  • ソシエート丸杉

    • マンション

    駅近

    物件写真

    駅近

    東京都渋谷区上原1丁目23-5

    • 東京メトロ千代田線「代々木上原」駅 徒歩2分
    築年月
    1994年3月築
    階建て
    3階建て(地下1階)
    構造
    RC
    総戸数
    10戸
    • 間取図
    • 所在階
      部屋番号
    • 賃料
      共益費
    • 敷金
      礼金
    • 間取り
      専有面積
    • お気に入り
    • 詳細
    間取図

    駅近

    間取図

    11万円 / 共益費 7,000円

    1ヶ月 / 1ヶ月

    1階(102号室) / 1R / 29.01㎡

    駅近

  • アーバンパーク代官山Ⅱ

    • マンション

    物件写真

    東京都渋谷区猿楽町9番8号

    • 東急東横線「代官山」駅 徒歩6分
    築年月
    2006年6月築
    階建て
    8階建て(地下1階)
    構造
    RC
    総戸数
    77戸
    • 間取図
    • 所在階
      部屋番号
    • 賃料
      共益費
    • 敷金
      礼金
    • 間取り
      専有面積
    • お気に入り
    • 詳細
    間取図
    間取図
    間取図

    27万円 / 共益費 10,000円

    1ヶ月 / 1ヶ月

    3階(314号室) / 1LDK / 45.13㎡

    間取図

    40万円 / 共益費 10,000円

    1ヶ月 / 1ヶ月

    4階(406号室) / 2LDK / 67.11㎡

  • アーバンパーク代官山Ⅰ

    • マンション

    物件写真

    東京都渋谷区猿楽町9番8号

    • 東急東横線「代官山」駅 徒歩6分
    築年月
    1982年11月築
    階建て
    8階建て(地下1階)
    構造
    RC
    総戸数
    77戸
    • 間取図
    • 所在階
      部屋番号
    • 賃料
      共益費
    • 敷金
      礼金
    • 間取り
      専有面積
    • お気に入り
    • 詳細
    間取図
    間取図

    43万円 / 共益費 10,000円

    1ヶ月 / 1ヶ月

    3階(302号室) / 2LDK / 67.64㎡

  • アーバンパーク代々木

    • マンション

    物件写真

    東京都渋谷区代々木1丁目2番9号

    • JR山手線「代々木」駅 徒歩5分
    築年月
    2017年9月築
    階建て
    8階建て
    構造
    RC
    総戸数
    28戸
    • 間取図
    • 所在階
      部屋番号
    • 賃料
      共益費
    • 敷金
      礼金
    • 間取り
      専有面積
    • お気に入り
    • 詳細
    間取図
    間取図

    21万円 / 共益費 10,000円

    1ヶ月 / 1ヶ月

    3階(306号室) / 1LDK / 35.69㎡

選択中の条件

絞り込み条件

物件種別

賃料

専有(建物)面積

駅徒歩

間取り

築年数

こだわり条件

新着

絞り込み条件を変更する条件

条件を指定して検索する

物件種別

賃料

専有(建物)面積

駅徒歩

間取り

築年数

こだわり条件

新着