武蔵野市(東京都)の賃貸マンション・アパート一覧

武蔵野市(東京都)の賃貸マンション・アパートをお探しなら「伊藤忠の賃貸」におまかせ下さい。
お客様の住みたいエリア・条件の賃貸マンション・アパート情報を1件紹介しております。
住みたい沿線・駅・地域や、ご希望に合った間取り、予算・ご希望の家賃、徒歩時間などの条件から、ご希望に沿った賃貸マンション・アパート情報を見つけていただけます。
お客様にご希望に沿うお部屋が見つかるようにお手伝いいたしますので、お気軽にご相談ください!

もっと見る
  • エリア

    東京都(武蔵野市)

  • 絞込条件

1件 / 1

並び替え
表示件数

チェックした物件をまとめて

  • レジディア吉祥寺

    • マンション
    • NEW

    物件写真

    東京都武蔵野市吉祥寺東町1丁目15-3

    • JR中央本線「吉祥寺」駅 徒歩10分
    築年月
    1995年3月築
    階建て
    3階建て
    構造
    RC
    総戸数
    48戸
    • 間取図
    • 所在階
      部屋番号
    • 賃料
      共益費
    • 敷金
      礼金
    • 間取り
      専有面積
    • お気に入り
    • 詳細
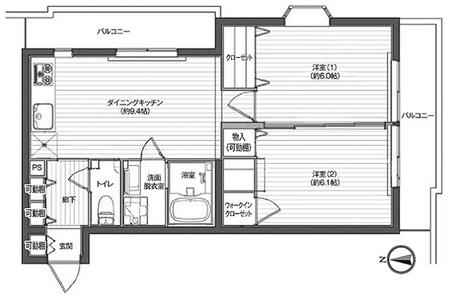
    間取図
    間取図

    19.5万円 / 共益費 15,000円

    1ヶ月 / 1ヶ月

    2階(208号室) / 2DK / 45.05㎡

選択中の条件

絞り込み条件

物件種別

賃料

専有(建物)面積

駅徒歩

間取り

築年数

こだわり条件

新着

絞り込み条件を変更する条件

条件を指定して検索する

物件種別

賃料

専有(建物)面積

駅徒歩

間取り

築年数

こだわり条件

新着