クレヴィアリグゼ西巣鴨の賃貸マンション・アパート一覧

クレヴィアリグゼ西巣鴨の賃貸マンション・アパートをお探しなら「伊藤忠の賃貸」におまかせ下さい。
お客様の住みたいエリア・条件の賃貸マンション・アパート情報を4件紹介しております。
住みたい沿線・駅・地域や、ご希望に合った間取り、予算・ご希望の家賃、徒歩時間などの条件から、ご希望に沿った賃貸マンション・アパート情報を見つけていただけます。
お客様にご希望に沿うお部屋が見つかるようにお手伝いいたしますので、お気軽にご相談ください!

もっと見る
  • 絞込条件

4件 / 1

並び替え
表示件数

チェックした物件をまとめて

  • クレヴィアリグゼ西巣鴨

    • マンション
    • NEW

    物件写真

    東京都北区滝野川3丁目56-1

    • 都営三田線「西巣鴨」駅 徒歩9分
    築年月
    2022年6月築
    階建て
    6階建て
    構造
    RC
    総戸数
    38戸
    • 間取図
    • 所在階
      部屋番号
    • 賃料
      共益費
    • 敷金
      礼金
    • 間取り
      専有面積
    • お気に入り
    • 詳細
    間取図
    間取図
    間取図
    間取図
    間取図

    12.8万円 / 共益費 12,000円

    1ヶ月 / 1ヶ月

    2階(203号室) / 1DK / 25.26㎡

    間取図

    21.9万円 / 共益費 15,000円

    1ヶ月 / なし

    2階(209号室) / 2LDK / 48.3㎡

    間取図

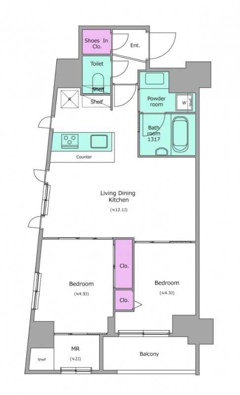
    22.4万円 / 共益費 15,000円

    1ヶ月 / 1ヶ月

    3階(302号室) / 2LDK+S(納戸) / 50.05㎡

    間取図

    13.4万円 / 共益費 12,000円

    1ヶ月 / 1ヶ月

    4階(406号室) / 1DK / 25.26㎡

絞り込み条件

物件種別

賃料

専有(建物)面積

駅徒歩

間取り

築年数

こだわり条件

新着

絞り込み条件を変更する条件

条件を指定して検索する

物件種別

賃料

専有(建物)面積

駅徒歩

間取り

築年数

こだわり条件

新着